Valle Fiorita Villa Quadrifamiliare
Villa Quadrifamiliare 225 mq. Giardino 300 mq. e Box Triplo…
289.000€
Via Sant'Ireneo, Frascati, Roma, Lazio, 00044, Italia
Vendita
459.000€
















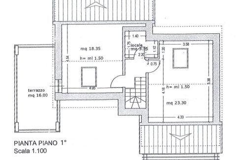
Frascati, Via Sant’Ireneo, nelle immediate vicinanze dei Castelli Romani proponiamo la vendita di una Villa Bifamiliare NUOVA COSTRUZIONE su tre livelli consegna a Marzo 2026. “Classe A4” Giardino esclusivo di 300 mq., Portico e Posti Auto.
Piano Seminterrato Ampia sala Hobby con Angolo Cottura, Bagno; Piano Terra Soggiorno con Angolo Cottura, 2 Camere, Bagno. Giardino privato di 300 mq. e Portico; Piano Primo Mansardato Alto ( mt 1,70 altezza minima ) composto da 2 Ampie Camere Matrimoniali, Bagno, Terrazzo. E’ POSSIBILE PERSONALIZZARE DIVISIONE AMBIENTI IN BASE ALLE PROPRIE ESIGENZE CONTESTO RISERVATO IMMERSO NEL VERDE
Pubblicato su Silvia FormichellaTrustindex verifica che la fonte originale della recensione sia Google. Abbiamo acquistato casa tramite questa agenzia e siamo rimasti estremamente soddisfatti. Un ringraziamento particolare va a Fabrizio, che si è dimostrato competente, paziente e sempre reperibile per qualsiasi domanda o dubbio, ci ha supportati e anche sopportati in momenti di ansia. La sua professionalità, disponibilità e trasparenza ci hanno accompagnato in ogni fase del processo, dalla visita dell'immobile fino al rogito notarile. Non potremmo essere più felici del risultato finale. Raccomando vivamente di essere seguiti da questa agenzia ed in particolar modo da Fabrizio.Pubblicato su Pino RunnTrustindex verifica che la fonte originale della recensione sia Google. Professionale, competente, paziente ed empatico, sempre disponibile e pronto a trovare la soluzione giusta, la compravendita è andata benissimo.Pubblicato su Marina MezzalanaTrustindex verifica che la fonte originale della recensione sia Google. L'esperienza è l'affabilità di Fabrizio Rotili sono stati determinanti sia per la riuscita della compravendita. Grande professionalitaPubblicato su Simone LicopoliTrustindex verifica che la fonte originale della recensione sia Google. Sono stato loro cliente per la compravendita del mio nuovo appartamento e devo dire che sono stato davvero soddisfatto! La professionalità e la competenza dello staff sono stati eccezionali. Hanno seguito tutta la trattativa con grande cura e attenzione risolvendo ogni problema con rapidità e efficienza. Li consiglio vivamente a chiunque cerchi un'agenzia immobiliare affidabile e competente.Grazie mille per tutto in particolar modo a Luke che ha seguito la mia praticaPubblicato su Martina VarrassiTrustindex verifica che la fonte originale della recensione sia Google. "*Esperienza fantastica!* Ho comprato casa grazie a questa agenzia e sono stato veramente soddisfatto! La loro squadra è stata professionale, competente e disponibile in ogni momento. Hanno trovato la casa dei miei sogni e hanno gestito tutta la trattativa con grande efficienza. Il loro servizio è stato veramente eccellente! Consiglio vivamente a chiunque stia cercando una casa.Un grazie particolare a Luke che ha gestito tutta la pratica in maniera impeccabile.Pubblicato su Gianluca CampoTrustindex verifica che la fonte originale della recensione sia Google. Ho avuto una esperienza molto positiva con Fabrizio,persona molto preparata e attenta alle esigenze dell’utente. Meticoloso nelle descrizioni e nella visura di tutte le certificazioni La consiglio soprattutto se si vuole tranquillità nell acquisto Grazie a tutto lo staffPubblicato su Adriana ManciniTrustindex verifica che la fonte originale della recensione sia Google. Mi sono trovata a vendere la mia casa, e mi e stato presentato il sig Fabrizio una persona speciale che ha saputo seguirmi fino al rogido seguendomi passo per passo, e stata una persona professionale e tanto altro oggi posso dire che non potevo trovare un altro agente migliore grazie per tutto.Pubblicato su Cristiano AucielloTrustindex verifica che la fonte originale della recensione sia Google. Ho avuto un'esperienza davvero eccellente con questa agenzia immobiliare. Dal primo contatto si sono dimostrati estremamente disponibili, onesti e professionali. Hanno seguito ogni fase con grande competenza, facendomi sentire sempre supportato e in buone mani. È raro trovare persone così serie e appassionate del proprio lavoro. Consiglio vivamente questa agenzia a chiunque stia cercando un servizio affidabile e di qualità.Pubblicato su Daniel FortunaTrustindex verifica che la fonte originale della recensione sia Google. Ho acquistato casa da loro staff competente e gentilissimo…sempre presenti… li consiglio vivamente🤩Pubblicato su Susi TurrizianiTrustindex verifica che la fonte originale della recensione sia Google. Nonostante una gestione complessa e diverse incertezze anche nelle fasi finali, grazie all’agenzia la vendita dell’appartamento è stata comunque portata a termine. Grazie
Villa Quadrifamiliare 225 mq. Giardino 300 mq. e Box Triplo…
289.000€
Torre Angela adiacente tutti i servizi precisamente in Via Giovanni…
159.000€